Objektdaten
Objektbeschreibung
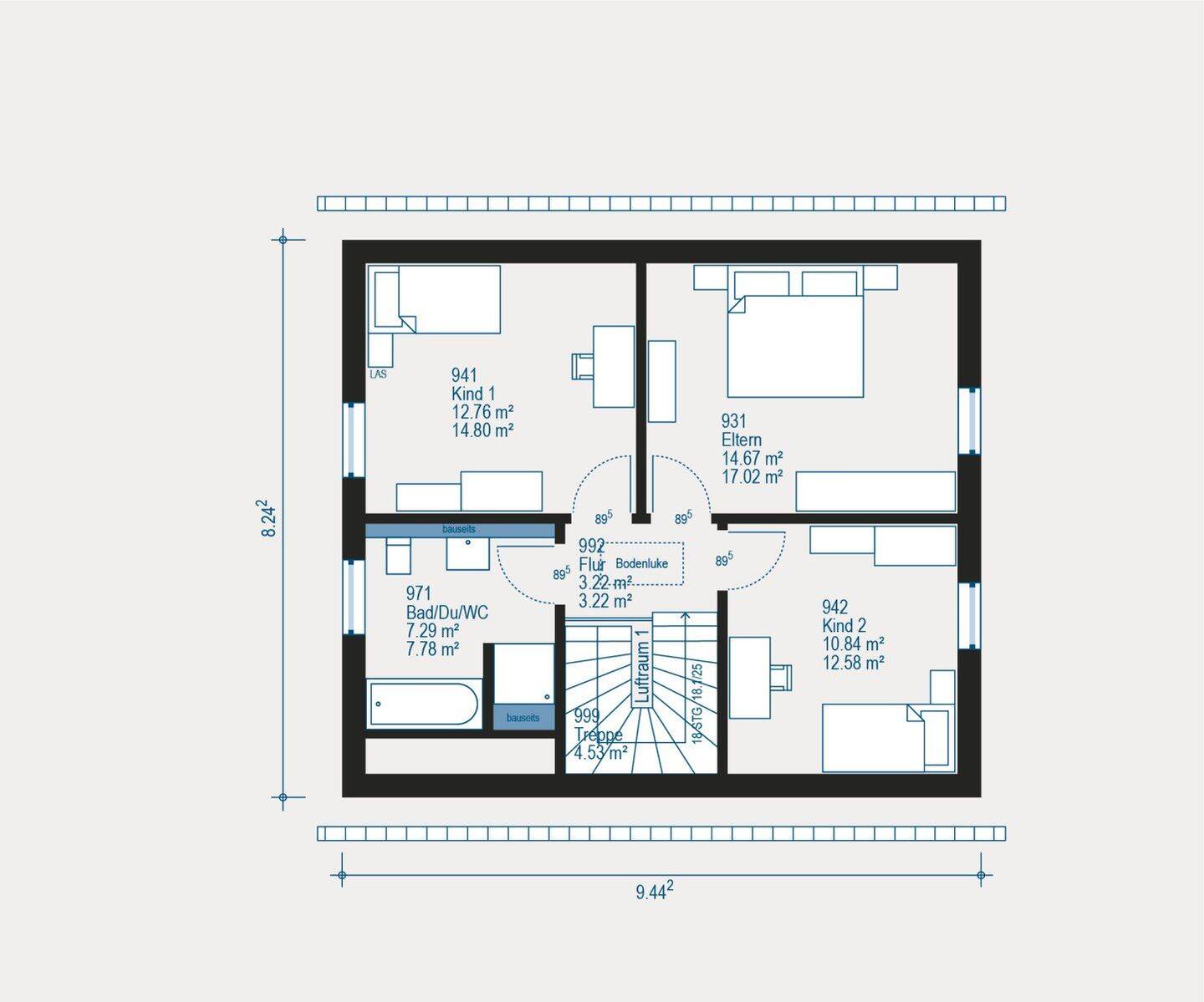
Dieses projektiert geplante 4-Zimmer-Einfamilienhaus in Dortmund bietet Ihnen auf 119 m² Wohnfläche und einem 330 m² großen Grundstück das ideale Zuhause für Ihre Familie. Mit zwei Etagen, drei Schlafzimmern, einem großzügigen Badezimmer sowie einem zusätzlichen Gäste-WC wird hier Komfort und Funktionalität perfekt vereint. Das Haus wird ganz nach Ihren individuellen Wünschen und Vorstellungen gefertigt, sodass Sie Ihr Traumhaus von Anfang an mitgestalten können. Das Projektkonzept von allkauf legt großen Wert auf Flexibilität und Kundennähe. Sie haben die Möglichkeit, die Raumaufteilung und Ausstattung aktiv mitzuplanen und auch den Innenausbau selbst zu übernehmen oder sich durch eines der professionellen Dienstleistungspakete unterstützen zu lassen. So entstehen moderne, hochwertige Fertighäuser, die auf Nachhaltigkeit und Energieeffizienz setzen und dabei höchsten Wohnkomfort bieten.Ähnliche Angebote
So funktioniert es
- Alle neuen Anzeigen matchen wir kostenlos mit Deinen Suchparametern.
- Passende Angebote senden wir Dir in einer E-Mail pro Tag.
- Du kannst auch verschiedene Suchen anlegen und Dich jederzeit abmelden. Mehr dazu




