Objektdaten
Objektbeschreibung
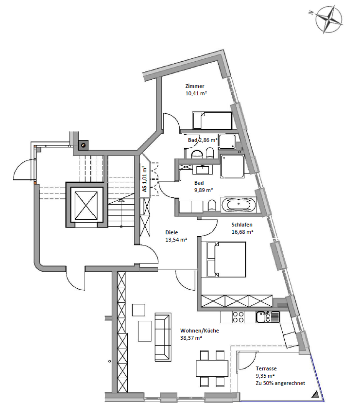
• insgesamt 10 Wohneinheiten• 3- bis 4-Zimmer-Wohnungen• 85 m² bis 104 m² Wohnfläche• alle Wohnungen mit Balkon• Pkw-Stellplätze im Erdgeschoss• Luft-Wasser-Wärmepumpe• Photovoltaikanlage auf dem DachWeitere Informationen finden Sie auf:www.lili-elbe-3.deÄhnliche Angebote
So funktioniert es
- Alle neuen Anzeigen matchen wir kostenlos mit Deinen Suchparametern.
- Passende Angebote senden wir Dir in einer E-Mail pro Tag.
- Du kannst auch verschiedene Suchen anlegen und Dich jederzeit abmelden. Mehr dazu




