Kaufpreis 330.000 €
Zimmer 2
Größe 72 m²
42555 Velbert
Objektdaten
Veröffentlicht am: 22. Juli 2025
Energieausweis: Liegt bei der Besichtigung vor
Danke! Bitte bestätige Deine E-Mail-Adresse – wir haben Dir soeben eine Mail geschickt.
Es gab ein Problem beim Absenden. Bitte versuche es erneut.
Bitte bestätige Deine E-Mail-Adresse, um Updates zu erhalten.
Objektbeschreibung
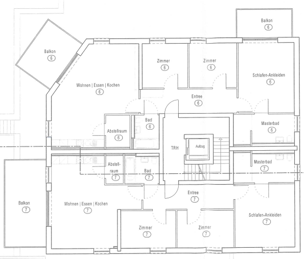
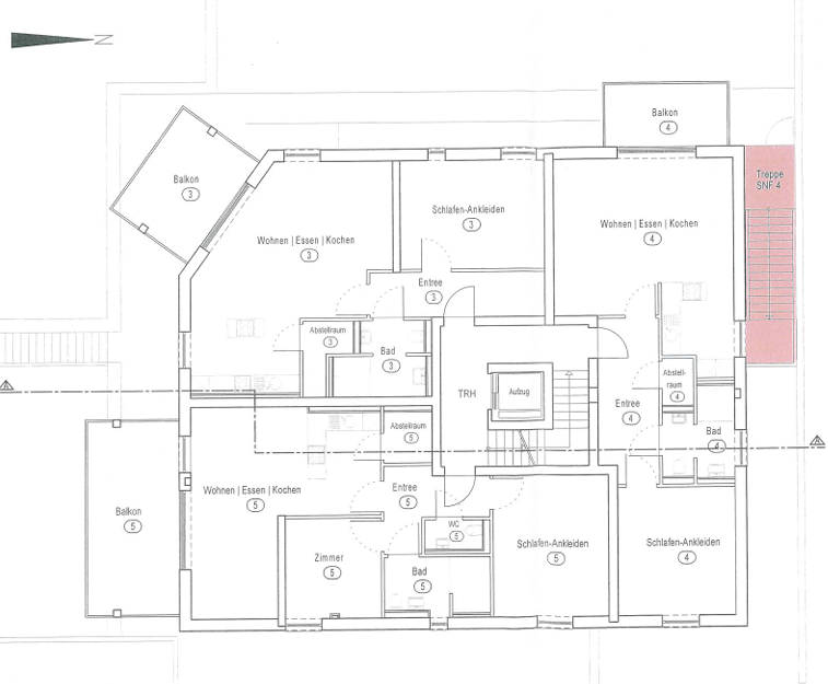
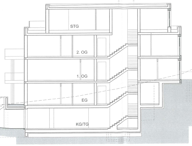
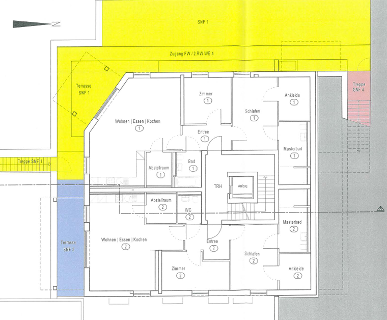
In beliebter und ruhiger Lage von Velbert-Langenberg entsteht ein hochwertig realisiertes Mehrfamilienhaus (mit insgesamt acht modernen Wohneinheiten) - ideal für Menschen, die komfortables und zukunftssicheres Wohnen in einem gepflegten Umfeld suchen.Diese moderne 2-Zimmer-Wohnung überzeugt durch einen durchdachten Grundriss und eine helle, offene Atmosphäre. Der großzügige Wohn- und Essbereich mit integrierter Küche bildet das Herzstück der Wohnung und bietet dank der großen Fensterfront viel Tageslicht sowie direkten Zugang zum Balkon, der zum Entspannen im Freien einlädt. Das Badezimmer kann sowohl mit Dusche als auch Badewanne ausgestattet werden. Ein zusätzlicher Abstellraum innerhalb der Wohnung sorgt für Ordnung und bietet nützlichen Stauraum. Der einladende Eingangsbereich rundet das Gesamtbild ab und führt direkt in die zentral gelegenen Wohnräume dieser stilvollen Einheit.Die Wohnung ist barrierefrei konzipiert und somit bestens geeignet für jede Lebensphase - auch für Menschen, die bis ins hohe Alter selbst bestimmt wohnen möchten. Breite Türen, ein stufenloser Zugang und durchdachte Raumaufteilungen sorgen für maximale Wohnqualität und Komfort.Die Bauausführung erfolgt durch einen erfahrenen Bauträger in massiver, energieeffizienter Bauweise. Zum Einsatz kommen hochwertige Materialien: Echtholzparkett in den Wohnbereichen, Fußbodenheizung, 3-fach verglaste Fenster mit Wärmeschutzverglasung sowie stilvoll geflieste Bäder mit Sanitärobjekten namhafter Hersteller.Ein eigener Kellerraum gehört zur Wohnung. Stellplätze können auf Wunsch separat erworben werden.Die Fertigstellung erfolgt je nach Baufortschritt - eine individuelle Übergabe ist flexibel möglich.
So funktioniert es
- Alle neuen Anzeigen matchen wir kostenlos mit Deinen Suchparametern.
- Passende Angebote senden wir Dir in einer E-Mail pro Tag.
- Du kannst auch verschiedene Suchen anlegen und Dich jederzeit abmelden. Mehr dazu
Wir haben soeben eine E-Mail mit Deinem Suchauftrag an Dich geschickt. – Klicke in dieser Mail auf den Bestätigungslink und schon geht's los. Prüfe ggf. auch Deinen Spamordner.
Es gab ein Problem beim Absenden Deiner E-Mail-Adresse. Bitte versuche es erneut.
WARNUNG: Bitte bestätige Deine E-Mail-Adresse, um regelmäßige Updates zu erhalten.