Kaufpreis 1.000.000 €
Größe 262 m²
92708 Mantel
Objektdaten
Veröffentlicht am: 4. August 2025
Baujahr: 1910
Energieausweis: Liegt bei der Besichtigung vor
Danke! Bitte bestätige Deine E-Mail-Adresse – wir haben Dir soeben eine Mail geschickt.
Es gab ein Problem beim Absenden. Bitte versuche es erneut.
Bitte bestätige Deine E-Mail-Adresse, um Updates zu erhalten.
Objektbeschreibung
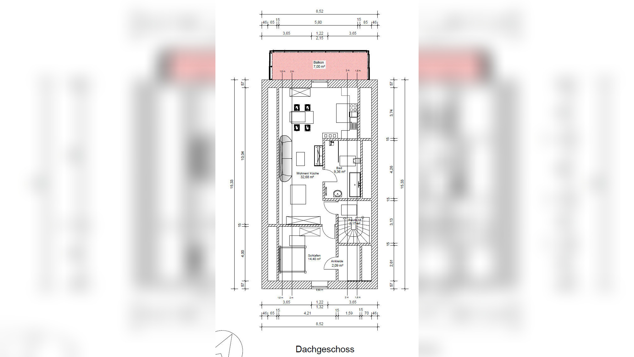
Das Wohnhaus wurde im Ursprung 1910 erbaut, 1975 angebaut und aufgestockt, in den Jahren 2023 bis Mitte 2025 kernsaniert. Das Objekt bietet drei Wohnungen mit einer Wohnfläche von 262 m² und besticht mit klaren Linien. Die Grundstücksgröße beträgt 605 m².Beim Betreten des Hauses empfängt Sie ein einladender Flur, der Zugang zu den verschiedenen Wohneinheiten bietet. Die Wohnungen EG und 1. OG verfügen jeweils über knapp 100 m² Wohnfläche, das DG bietet 65 m² Wohnfläche. Die Wohn- und Essbereiche mit integrierten Küchen sind hell und geräumig, mit großen Fenstern, die viel Tageslicht hereinlassen. Die Schlafzimmer sind großzügig geschnitten und bieten viel Raum zur Entfaltung. Ein besonderes Highlight bieten Terrasse und die Balkone, hier gibt´s Raum den Sommer nach draußen zu verlagern sowie zum Entspannen.Die Bäder sind funktional gestaltet, ausgestattet mit Wanne, einer komfortablen Dusche sowie Waschbecken und WC.Jede Partei erhält einen großen Kellerraum, es bietet zusätzlichen Stauraum und Funktionalität. Zusätzlich ist ein Wasch- und Trockenraum vorhanden.Im Außenbereich befinden sich die Garagen.Für die Wohnungen EG und OG gibt's hier ausreichend Platz für Fahrzeuge und Stellraum im ausgebauten Dachgeschoß. Der Hof ist gepflastert und deshalb pflegeleicht zu händeln. Ein Käufer hat die Möglichkeit ein günstiges KFW-Darlehen mit Tilgungszuschuss in Anspruch zu nehmen. Rufen Sie uns an - wir beraten Sie gerne!
So funktioniert es
- Alle neuen Anzeigen matchen wir kostenlos mit Deinen Suchparametern.
- Passende Angebote senden wir Dir in einer E-Mail pro Tag.
- Du kannst auch verschiedene Suchen anlegen und Dich jederzeit abmelden. Mehr dazu
Wir haben soeben eine E-Mail mit Deinem Suchauftrag an Dich geschickt. – Klicke in dieser Mail auf den Bestätigungslink und schon geht's los. Prüfe ggf. auch Deinen Spamordner.
Es gab ein Problem beim Absenden Deiner E-Mail-Adresse. Bitte versuche es erneut.
WARNUNG: Bitte bestätige Deine E-Mail-Adresse, um regelmäßige Updates zu erhalten.