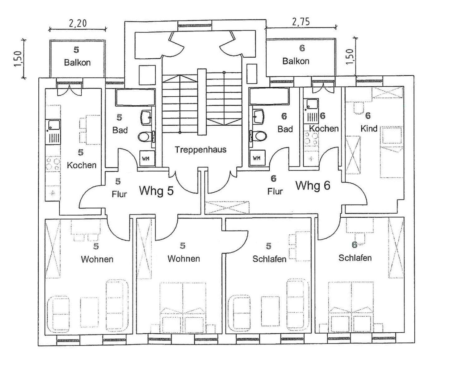
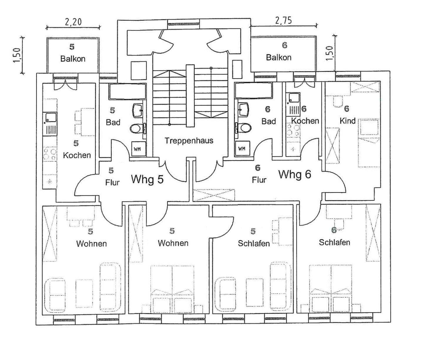
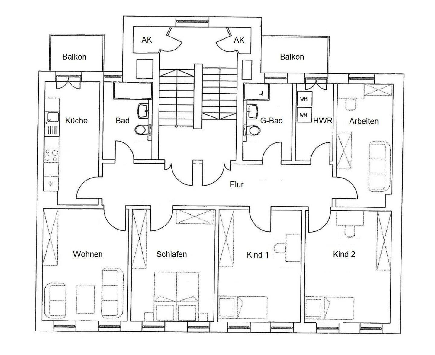
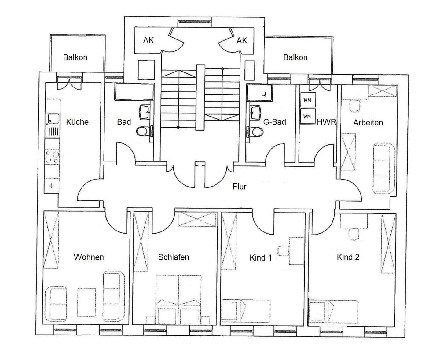
Objektdaten
Objektbeschreibung
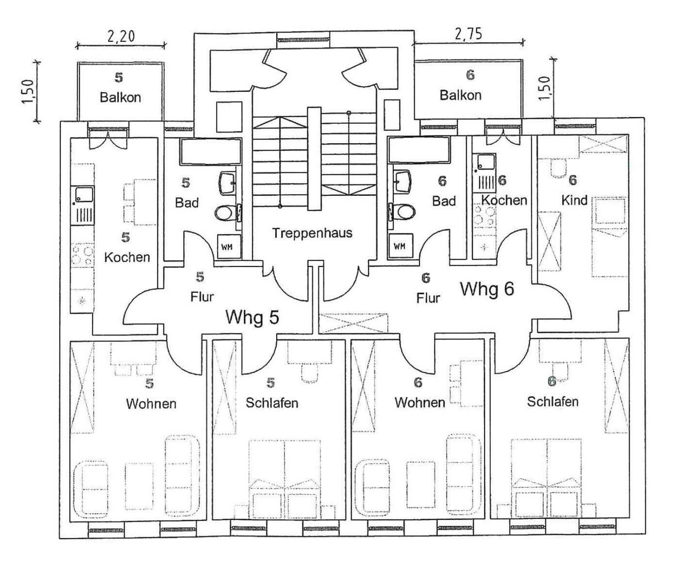
Saniertes Mehrfamilienhaus in ruhiger Seitenstraße mit großem grünen Mietergemeinschaftsgarten.Hinweis zur Courtage: Provisionsteilung - hälftige Käufer- bzw. Verkäuferprovision in Höhe von je 3,57 % inkl. 19 % Umsatzsteuer vom endgültigen Erwerbspreis (fällig für den Käufer bei Vertragsabschluss und nach Eingang der Verkäuferprovision)Ähnliche Angebote
So funktioniert es
- Alle neuen Anzeigen matchen wir kostenlos mit Deinen Suchparametern.
- Passende Angebote senden wir Dir in einer E-Mail pro Tag.
- Du kannst auch verschiedene Suchen anlegen und Dich jederzeit abmelden. Mehr dazu




