Objektdaten
Objektbeschreibung
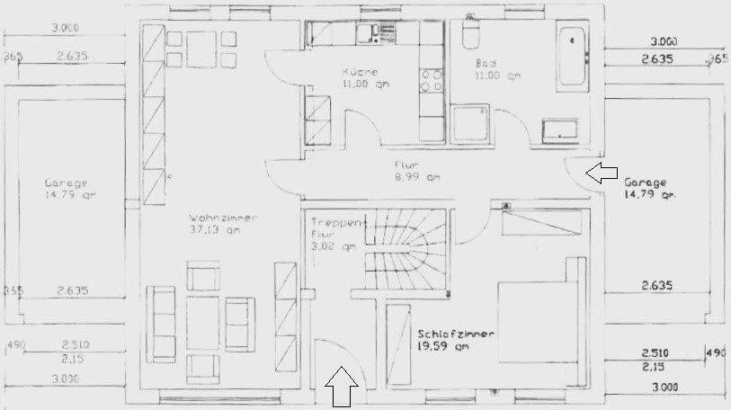
– Modernes Einfamilienhaus mit Einliegerwohnung und Energieautarkie Objektbeschreibung Zum Verkauf steht ein hochwertig ausgestattetes Einfamilienhaus mit ca. 180 m² Wohnfläche sowie einer separaten Einliegerwohnung von ca. 80 m². Das Objekt überzeugt durch eine durchdachte Halbetagen-Bauweise, großzügige Raumaufteilung und eine moderne, weitgehend energieautarke Versorgung. Die Immobilie befindet sich in einem sehr gepflegten Zustand und kombiniert Wohnkomfort, Effizienz und stilvolle Architektur auf ideale Weise. Ausstattung •Photovoltaikanlage (12 kW) mit Batteriespeicher •Ölheizung mit PV-Heizstab zur Warmwasserbereitung im Sommer •Nahezu energieautarkes Gesamtkonzept •Kamin-/Holzofen mit Sichtglas für behagliche Atmosphäre •Klimaanlage mit Heiz- und Kühlfunktion •Ankleidezimmer zwischen Bad und Schlafzimmer •Zwei voll ausgestattete Bäder sowie Gäste-WC in der ELW •Einliegerwohnung mit eigenem Zugang – eigenem Garten und eigener Terrasse .-ideal für Gäste, Familie oder Vermietung •Hochwertige Steintreppe im gesamten Wohnbereich •. Keller , Waschraum , Speicher (+50 m² ) •Doppelgarage im Haus im Keller •Sechs weitere Stellplätze auf dem Grundstück •Große Terrasse und Balkon mit hochwertigem Aluminium-Vorbau und Geländer • Glasfaser Internet •Hochwertige Alno Küche mit Siemens Induction und Backofen , Side by Side Kühlschrank mit Eiswürfel und Frischwasser Anschluss. Esszimmer kann bei Bedarf auch drin bleiben •Einliegerwohnung vermietet bei Bedarf Kündbar 6000€p.a. Kalt Mieteinnahmen Besonderheiten Dieses Objekt bietet durch seine Kombination aus moderner Gebäudetechnik, nachhaltiger Energieversorgung und durchdachtem Raumkonzept eine außergewöhnlich hohe Wohn- und Lebensqualität. Die separate Einliegerwohnung eröffnet flexible Nutzungsmöglichkeiten – von der Mehrgenerationennutzung über Homeoffice bis hin zur renditestarken Vermietung. Ideal für Familien oder Paare mit Anspruch Qualität, Unabhängigkeit und Zukunftssicherheit. Balkon, Terrasse, Garten, Keller, Vollbad, Duschbad, Einbauküche, Gäste-WC, Kamin, Fliesen Bemerkungen: •Steintreppe •Alno Küche •Echtstein Arbeitsplatte •Siemens Geräte •Samsung Side by Side /Eiswürfel •Duravit Bad •BYD 12 kWh Batterie 2025 •Suncrow 10kwh Wechselrichter •Notstrom bei NetzausfallEnergieträger: Solar
Energieausweis nicht vorhanden
Die Immobilie verfügt über ein leistungsstarkes, hybrides Energiesystem bestehend aus Ölheizung (ca. 2.000 L/Jahr), einer effizienten Luft/Luft-Wärmepumpe zum Heizen und Kühlen, einer 10-kW-PV-Anlage mit 12-kWh-Batteriespeicher sowie einem 7-kW-Holzkamin als zusätzlicher, unabhängiger Wärmequelle. Dachfläche hochwertig gedämmt, Warmwasser über PV-Heizstab unterstützt. Das Setup ermöglicht niedrige Betriebskosten, hohe Energieautarkie und klare Zukunftssicherheit.
Energieausweis ist vorhanden muss aber der Modernisierung angepasst/erneuert werden
ohne-makler (OM) ist weder Anbieter noch Vermittler der Immobilie. OM betreibt eine Plattform für Immobilieneigentümer, die unter anderem die gleichzeitige Veröffentlichung einzelner Inserate auf mehreren Immobilienportalen ermöglicht. Die Inhalte dieser Inserate werden ausschließlich von Dritten verantwortet. Für die Richtigkeit, Vollständigkeit oder Rechtmäßigkeit der Angaben übernimmt OM keine Haftung. Hinweise auf mögliche Rechtsverstöße können jederzeit gemeldet werden und werden nach Prüfung umgehend bearbeitet.
So funktioniert es
- Alle neuen Anzeigen matchen wir kostenlos mit Deinen Suchparametern.
- Passende Angebote senden wir Dir in einer E-Mail pro Tag.
- Du kannst auch verschiedene Suchen anlegen und Dich jederzeit abmelden. Mehr dazu




