Objektdaten
Objektbeschreibung
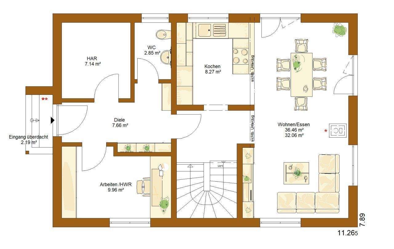
Insgesamt werden auf dem ca. 1580,00 m² großen Grundstück 2 Reihenhäuser und 1 Doppelhaus realisiert. Hier steht eine Doppelhaushälfte mit Grundstück und Stellplätzen zum Verkauf. Der Grundstückseigentümer hat die Baugenehmigung erhalten und möchte nun dieses Grundstück bebauen und mit Wohnhaus verkaufen. Von der Lebensplatz Projekte GmbH werden alle erforderlichen Bauleistungen erbracht. Die Häuser werden in Holzbauweise mit entsprechender Wärmedämmung und Photovoltaikanlage erstellt. Somit ist eine KfW-Förderung möglich. Die Häuser überzeugen mit viel Platz, geringen Heizkosten und vielen Extras. Terrasse, Garten, Duschbad, Gäste-WC Bemerkungen: Folgende Leistungen sind im Kaufpreis enthalten: Erdarbeiten für die Bodenplatte und das Herrichten der Außenanlagen Alle Versorgungsleitungen für die Häuser Sämtliche Entwässerungsleitungen Pflaster für Wege, Terrassen und Aufstellflächen Stauraum Trennwände auf den Terrassen Einhausung der Müllbehälter Stabgitterzaun entlang der Grundstücksgrenze Oberboden mit Raseneinsaat 2x Außenstellplätze Stellplatz mit einer Wallbox Haus in Holzbauweise mit Holzwolle (Dämmung) Wärmepumpe für Heizung und Warmwasser Zentrale Lüftungsanlage mit Wärmerückgewinnung Fußbodenheizung Bodenbeläge nach Wahl Photovoltaikanlage ca. 5 KwP und Batteriespeicher ca. 5 Kwh Kunststofffenster mit elektrischen Rollläden Hochwertige Aluminium Haustür Massive Treppe mit Vollholzstufen (Eche) Baunebenkosten und Energieberater Nicht enthalten sind die Kaufnebenkosten und die Kosten der Teilungserklärung.Energieträger: Luft-/Wasserwärme
Energieausweis nicht vorhanden
Makleranfragen nicht erwünscht. Nach § 7 UWG sind unaufgeforderte Kontaktaufnahmen durch Makler ohne ausdrückliche Einwilligung des Empfängers verboten!
ohne-makler (OM) ist weder Anbieter noch Vermittler der Immobilie. OM betreibt eine Plattform für Immobilieneigentümer, die unter anderem die gleichzeitige Veröffentlichung einzelner Inserate auf mehreren Immobilienportalen ermöglicht. Die Inhalte dieser Inserate werden ausschließlich von Dritten verantwortet. Für die Richtigkeit, Vollständigkeit oder Rechtmäßigkeit der Angaben übernimmt OM keine Haftung. Hinweise auf mögliche Rechtsverstöße können jederzeit gemeldet werden und werden nach Prüfung umgehend bearbeitet.
So funktioniert es
- Alle neuen Anzeigen matchen wir kostenlos mit Deinen Suchparametern.
- Passende Angebote senden wir Dir in einer E-Mail pro Tag.
- Du kannst auch verschiedene Suchen anlegen und Dich jederzeit abmelden. Mehr dazu




