Objektdaten
Objektbeschreibung
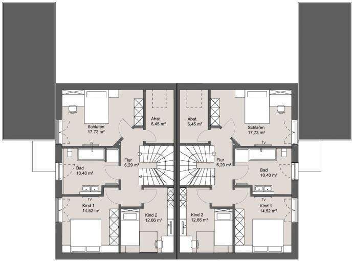
Exklusive Gartenwohnung mit Design, Technik und Lebensqualität auf höchstem Niveau Diese außergewöhnliche Wohneinheit vereint den Komfort eines Einfamilienhauses mit der Exklusivität moderner Architektur. Großzügige Grundrisse, durchdachte Raumkonzepte und ein ästhetisch harmonisches Design schaffen ein Zuhause, das gleichermaßen Ruhe, Stil und Funktionalität ausstrahlt. Die lichtdurchfluteten Wohnräume im Erdgeschoss öffnen sich über große Fensterfronten in einen privaten Garten von rund 200 m² Sondernutzungsfläche – mit überdachter Terrasse und Pool als persönlichem Rückzugsort. Hier verbinden sich Privatsphäre, hochwertige Außenraumgestaltung und ein hohes Maß an Wohnqualität zu einem einzigartigen Wohnerlebnis. Im Inneren erwartet Sie eine Ausstattung auf Premium-Niveau: eine exklusive Einbauküche, moderne Raffstore-Beschattung, ein stilvoller Kamin sowie ein begehbarer Kleiderschrank. Technisch präsentiert sich die Immobilie auf dem neuesten Stand: Wärmepumpe, Photovoltaikanlage mit Batteriespeicher und intelligente Gebäudesteuerung sorgen für nachhaltiges, energieeffizientes Wohnen mit niedrigen Betriebskosten. Ein sonniger Südbalkon im Obergeschoss, eine Garage sowie ein Carport runden das Angebot perfekt ab. Diese Wohnung richtet sich an Menschen, die ästhetisches Design, hochwertige Technik und ein hohes Maß an Privatsphäre schätzen – ein Zuhause mit Charakter und dem Wohngefühl eines Hauses, vereint in einer besonderen Immobilie. Balkon, Terrasse, Garten, Vollbad, Duschbad, Pool · Schwimmbad, Einbauküche, Gäste-WC, Kamin, Barrierefrei, Parkett, Laminat, Fliesen, Sonstiges (s. Text) Bemerkungen: Diese Wohneinheit überzeugt durch eine Ausstattung, die Komfort, Design und technische Finesse auf Premiumniveau vereint. Jeder Raum wurde mit hochwertigen Materialien und modernen Lösungen gestaltet – für ein Wohngefühl, das stilvoll, funktional und zukunftssicher ist. ✔ Hochwertige Einbauküche – maßgefertigt, mit Granit-Arbeitsplatte, modernsten Markengeräten und großzügigem Stauraum ✔ Barrierefreier Wohnbereich im Erdgeschoss – ideal für komfortables Wohnen in jedem Lebensabschnitt ✔ Wohnraumlüftungsanlage – sorgt für dauerhaft frische Luft und ein hervorragendes Raumklima, optimal auch für Allergiker ✔ Exklusives Badezimmer – mit freistehender Badewanne, bodenebener Walk-in-Dusche und eleganten Materialien ✔ Große Fensterfronten – für lichtdurchflutete Räume und ein großzügiges, offenes Wohngefühl ✔ Außenliegende Raffstores – bieten optimalen Licht- und Wärmeschutz sowie Privatsphäre ✔ Wärmepumpe + Photovoltaikanlage + Batteriespeicher – energieeffizientes, kostenschonendes Wohnen auf neuestem Stand ✔ Überdachte Terrasse mit direktem Gartenanschluss – erweitert den Wohnraum nach draußen und bietet hochwertigen Lebensraum im Freien ✔ Pool (3 × 7 m) – elegantes Highlight für Erholung, Sport und Freizeit ✔ Südseitiger Balkon im Obergeschoss – mit schönem Ausblick und sonnigem Charakter ✔ Begehbarer Kleiderschrank – stilvolle Lösung für komfortablen Stauraum ✔ Außen- und Innenkamin – für stimmungsvolle Abende mit besonderem Ambiente ✔ Großzügiger Garten (ca. 200 m² Sondernutzung) – ideal für Rückzug, Spielen, Gärtnern oder Entspannen ✔ Garage + überdachtes Carport – komfortables Parken direkt am Haus ✔ Wallbox für E-Autos – moderne Ladeinfrastruktur für nachhaltige Mobilität ✔ Moderne Haustechnik & hochwertige Materialien – ein durchgängig exklusives, hochwertiges GesamtbildEnergieträger: Luft-/Wasserwärme
ohne-makler (OM) ist weder Anbieter noch Vermittler der Immobilie. OM betreibt eine Plattform für Immobilieneigentümer, die unter anderem die gleichzeitige Veröffentlichung einzelner Inserate auf mehreren Immobilienportalen ermöglicht. Die Inhalte dieser Inserate werden ausschließlich von Dritten verantwortet. Für die Richtigkeit, Vollständigkeit oder Rechtmäßigkeit der Angaben übernimmt OM keine Haftung. Hinweise auf mögliche Rechtsverstöße können jederzeit gemeldet werden und werden nach Prüfung umgehend bearbeitet.
So funktioniert es
- Alle neuen Anzeigen matchen wir kostenlos mit Deinen Suchparametern.
- Passende Angebote senden wir Dir in einer E-Mail pro Tag.
- Du kannst auch verschiedene Suchen anlegen und Dich jederzeit abmelden. Mehr dazu





