Objektdaten
Objektbeschreibung
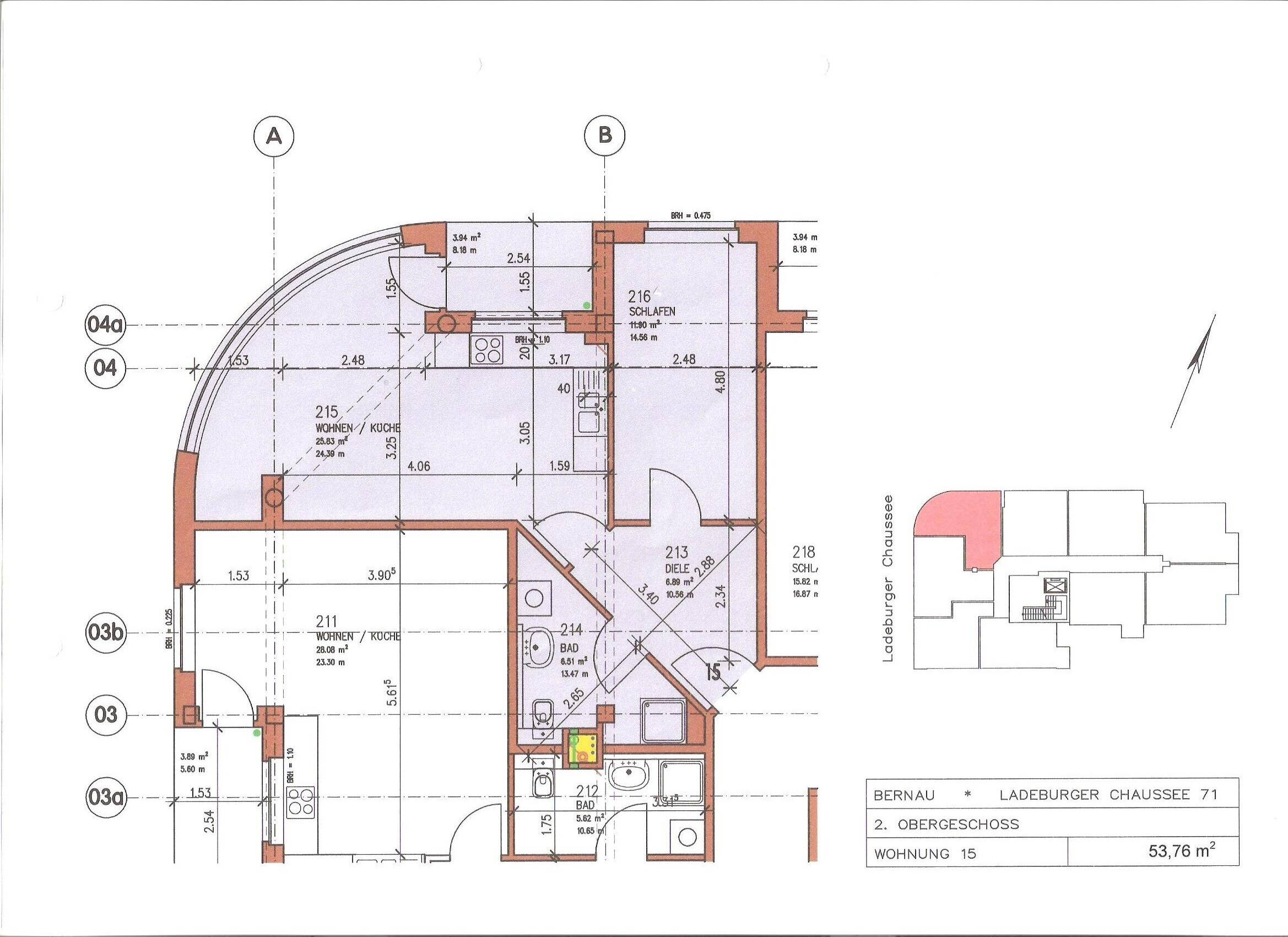
WICHTIG: Zum Zeitpunkt der Bilder befand sich die Wohnung in den letzten Zügen der Fertigstellung. Aus diesem Grund fehlen noch Waschbecken, Türdrücker & Duschglaswand. Willkommen in Ihrem neuen Zuhause! Diese frisch sanierte 2-Raum-Wohnung befindet sich in einem umfassend modernisierten Mehrfamilienhaus in Bernau und beeindruckt durch eine hochwertige Ausstattung, helle Räume und ein durchdachtes Wohnkonzept. Sie sind die ersten, die diese Wohnung nach der Kernsanierung beziehen! 🏡 Wohnhighlights der Wohnung Erstbezug nach Komplettsanierung 53,37 m² optimal geschnittene Wohnfläche Großzügiges Wohnzimmer mit offener Küchenlösung – ideal für moderne Wohnkonzepte und viel Tageslicht Komplett erneuerte Böden in hochwertiger Holzoptik neue hochwertige Innentüren mit moderner Optik Alle Wände frisch renoviert Neue Heizungsanlage / Gaszentralheizung im gesamten Haus – effizient und zukunftssicher 🛁 Luxuriöses, neu gestaltetes Badezimmer Ein echtes Highlight sind die komplett neu aufgebauten Bäder: großzügige Badewanne moderne Regendusche edle, warme Fliesen in Holzstruktur hochwertige Armaturen in modernem mattschwarz Diese Kombination verleiht dem Bad einen hotelartigen Wohlfühlcharakter. 🌳 Grüner Innenhof – Nutzung nach Sanierungsabschluss Das Grundstück verfügt über einen riesigen, grünen Innenhof, der nach Abschluss der laufenden Außenarbeiten für alle Mieter zugänglich sein wird. Dieser Bereich wird eine kleine Oase mitten in Bernau – perfekt zum Entspannen, Sonnen oder für Kinder zum Spielen. 🚗 Pkw-Stellplätze auf dem Hof (optional) Über eine schmale, aber gut befahrbare Einfahrt besteht die Möglichkeit, für normalgroße Fahrzeuge Stellplätze direkt auf dem Hof anzumieten. Ideal für Bewohner, die kurze Wege lieben. 📍 Lage Die Wohnungen befinden sich in ruhiger, dennoch zentraler Lage in Bernau. Einkaufsmöglichkeiten, öffentliche Verkehrsmittel und der historische Stadtkern sind in wenigen Minuten erreichbar. Die Umgebung ist geprägt von gepflegten Altbauten, Grünflächen und einer angenehmen Nachbarschaft. 🔧 Das gesamte Gebäude wurde umfassend modernisiert neue Gaszentralheizung neue Sanitär- und Heizungsleitungen modernisierte Elektrik frisch renovierte Treppenhäuser (nach Abschluss der Wohnungssanierungen geplant für 12-2025) hochwertige Wohnungssanierung von Grund auf ✔️ Ideal für Singles, Paare oder Berufspendler Diese Wohnung verbindet hochwertige Ausstattung, modernes Wohnen, ruhige Lage und perfekte Anbindung – eine seltene Kombination in Bernau. Objektzustand: Erstbezug nach Sanierung Keller, Vollbad, FliesenEnergieträger: Gas
Energieausweis nicht vorhanden
Lehmann Service GmbH
Beeskower Straße 9
15890 Eisenhüttenstadt
[email protected]
03364/5499906
Makleranfragen nicht erwünscht. Nach § 7 UWG sind unaufgeforderte Kontaktaufnahmen durch Makler ohne ausdrückliche Einwilligung des Empfängers verboten!
ohne-makler (OM) ist weder Anbieter noch Vermittler der Immobilie. OM betreibt eine Plattform für Immobilieneigentümer, die unter anderem die gleichzeitige Veröffentlichung einzelner Inserate auf mehreren Immobilienportalen ermöglicht. Die Inhalte dieser Inserate werden ausschließlich von Dritten verantwortet. Für die Richtigkeit, Vollständigkeit oder Rechtmäßigkeit der Angaben übernimmt OM keine Haftung. Hinweise auf mögliche Rechtsverstöße können jederzeit gemeldet werden und werden nach Prüfung umgehend bearbeitet.
So funktioniert es
- Alle neuen Anzeigen matchen wir kostenlos mit Deinen Suchparametern.
- Passende Angebote senden wir Dir in einer E-Mail pro Tag.
- Du kannst auch verschiedene Suchen anlegen und Dich jederzeit abmelden. Mehr dazu





