Objektdaten
Objektbeschreibung
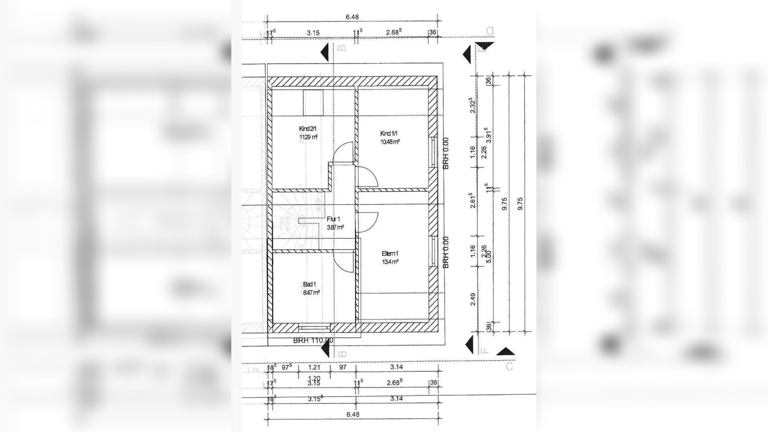
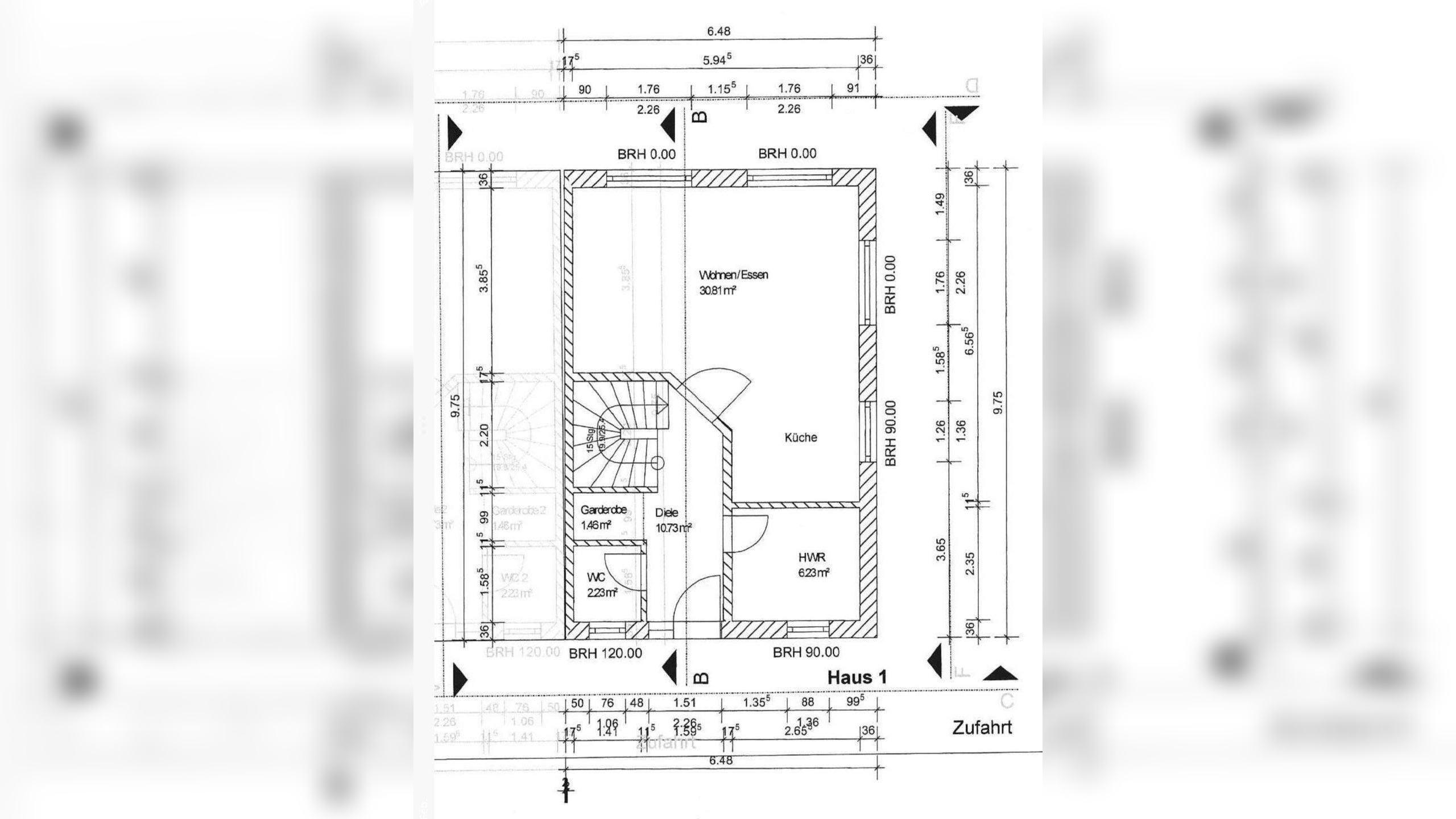
Haus 1: Planen Sie mit uns für sich und Ihre Familie ihren Wohntraum in ruhiger Lage von Schnelsen.Auf einem wunderschönen ca. 281 m² großen Grundstück entsteht Ihr Traumhaus mit ca. 112 m² Wohnfläche.Der offene Grundriss schafft eine einladende Atmosphäre und verbindet Wohnen, Essen und Kochen auf harmonische Weise. Die moderne, offene Küche bietet einen direkten Zugang zur sonnigen Terrasse und lädt zu entspannten Stunden im Freien ein.Die Schlafzimmer sind großzügig geschnitten und bieten vielfältige Gestaltungsmöglichkeiten.Bei dem Projekt handelt es sich um einen Neubau, der durch eine durchdachte Raumaufteilung, hochwertige Materialien und eine zeitgemäße Architektur überzeugt.Die 112 m² Wohnfläche sind nach DIN 277 berechnet und können individuell sowie kostenfrei geplant werden. Im Kaufpreis nicht enthalten sind Malerarbeiten, Fliesen- und Bodenbeläge. Diese können jedoch ganz oder teilweise optional gegen Aufpreis übernommen werden.LuftwärmepumpeFußbodenheizungKFW 40 und 40+ gegen Aufpreis möglichGemeinsam Träume verwirklichen mit unseren vollmassiven Qualitätshäusern.massiv - Stein auf SteinSie wollen nicht länger Miete zahlen?Sie wollen mehr Raum für Ihre Familie?Sie wollen einen schönen Garten?Diese wunderschöne Doppelhaushälfte im TOP-Energiestand erfüllt alle Anforderungen, die Sie an Ihr NEUES ZUHAUSE stellen.Wir kümmern uns um:-Ihr Traumhaus-Ihr Grundstück-Ihre FinanzierungÄhnliche Angebote
So funktioniert es
- Alle neuen Anzeigen matchen wir kostenlos mit Deinen Suchparametern.
- Passende Angebote senden wir Dir in einer E-Mail pro Tag.
- Du kannst auch verschiedene Suchen anlegen und Dich jederzeit abmelden. Mehr dazu




