Kaufpreis 160.600 €
Zimmer 1
Größe 29 m²
54294 Trier
Objektdaten
Veröffentlicht am: 18. März 2026
Baujahr: 2025
Energieausweis: Liegt bei der Besichtigung vor
Danke! Bitte bestätige Deine E-Mail-Adresse – wir haben Dir soeben eine Mail geschickt.
Es gab ein Problem beim Absenden. Bitte versuche es erneut.
Bitte bestätige Deine E-Mail-Adresse, um Updates zu erhalten.
Objektbeschreibung
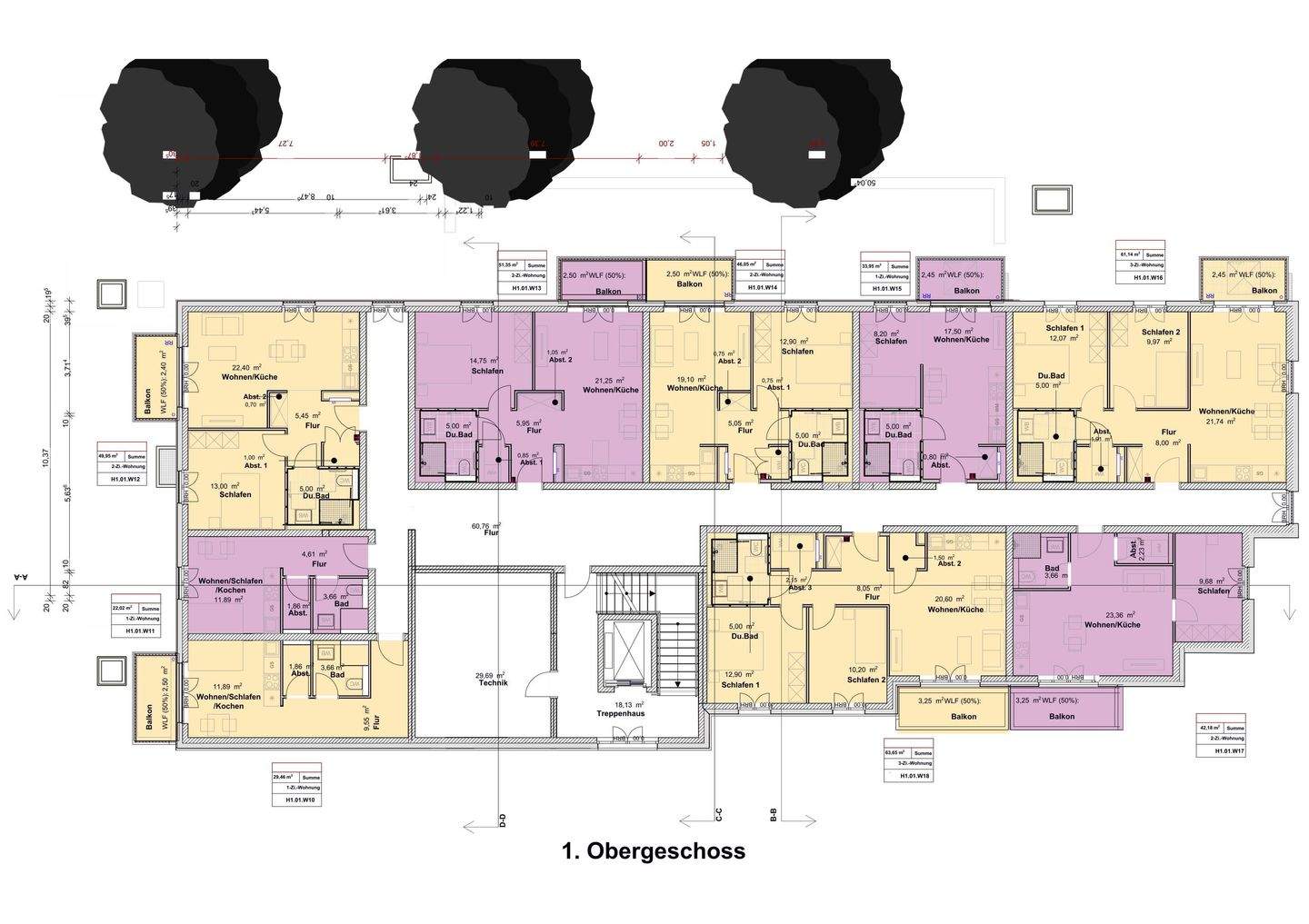
Modernes barrierefreies Wohnen mit moderner Heiztechnik im KFW 40 QNG Energiesparhaus im neuen Wohngebiet "Grünes Quartier" mit guter Verkehrsanbindung nach Luxemburg . Helle sonnige Wohnung in modernem KFW 40 QNG Energiesparhaus. Sehr hohe Steuervorteile durch Kombination von degressive Abschreibung und Sonderabschreibung Mietwohnungsbau für Vermieter möglich !Altengerechtes schönes Wohnen mit moderner kostengünstiger Heiztechnik in gefragter Lage im neuen "Grünen Quartier" im ruhigen Innenbereich. In dieser exponierten Lage entstehen moderne attraktive Eigentumswohnungen von ca. 22 bis ca. 110 m² mit moderner Technik in altersgerechter Ausführung mit Aufzug und Tiefgarage in nachhaltiger Bauweise im hochwertigen Standard KFW 40 QNG. Eine hochwertige Außenfassade mit ansprechender Klinkerfassade, elektrische Rollläden, ein moderner Aufzug, schöne Fliesen und Sanitärausstattungen, attraktive Parkettböden, hochwertige Wohnungseingangstüren, moderne 3-fach verglaste Fenster, eine gute Elektroausstattung, eine kontrollierter Wohnraumbelüftung mit Wärmerückgewinnung sowie attraktive Parkettböden werden ausgeführt. Bei der Konzeption des Objektes wurde besonders nachhaltiges Bauen geachtet, was durch den sehr aufwendigen KFW 40 QNG Standard dokumentiert wird. Die Kombination von moderner Technik sowie hochwertiger Isolierung führt zu sehr günstigen Heizkosten bzw. Nebenkosten. Alle Wohnungen verfügen über schöne Balkone oder großzügige Terrassen bzw. Dachterrassen. Jeder Wohnung ist ein Abstell- /Kellerraum im Untergeschoss zugeordnet. Die Wohnungen im Erdgeschoß erhalten auf Wunsch einen Garten.Das Angebot bezieht sich auf die Wohnung 10 im 1. Obergeschoß. Von der zentralen Diele mit Garderobe gelangen Sie in den hellen Wohn/Eßbereich mit offener Küche mit Ausgang auf den schönen Balkon. Dem Kochbereich ist ein sinnvoller Abstellraum zugeordnet Gleichermaßen ist das Duschbad von der Diele erreichbar. Die Wohnung hat eine Wohnfläche von ca. 30 m². Die baugleiche Wohnung kann im Erdgeschoß, 2. Obergeschoß sowie im 3. Obergeschoß erworben werden. Der Wohnung ist ein Kellerraum zugeordnet.Es besteht die Möglichkeit Tiefgaragenstellplätze für 26.500 EUR zu erwerben. Die Wohnanlage erfüllt die technischen Voraussetzungen um die KFW 40 Darlehen von 150.000 EUR ab 1,45 % nach den Programmen 297, 298 sowie 220.000 EUR nach dem Programm 300 (Familienförderung) ab 0,01 % zu ermöglichen. Die Wohnungen können bei einem Erwerb bis zum Jahr der Fertigstellung und einer Vermietung entsprechend den Änderungen des Wirtschaftschancengesetzes mit einer degressiven Abschreibung gemäß ( § 7 Abs.5a EStG) von jährlich 5 % bezogen auf den jeweiligen Buchwert abgeschrieben werden. Hierdurch werden hohe Steuervorteile erzielt. Aufgrund des Standards KFW 40 QNG und der weiteren Voraussetzungen ist eine Kombination der degressiven Abschreibung von 5 % mit der Mietwohnabschreibung (§ 7 b EStG) möglich. Hier können zusätzlich 4 Jahre Sonderabschreibungen von 5 % von bis zu 4.000 EUR pro m² in Anspruch genommen werden. Sowohl bei der Kostengrenze von 5.200 EUR pro m² als auch beim Abschreibungswert von 4.000 EUR pro m² können die Wohn- und Nebenflächen (Bruttogrundflächen) zugrunde gelegt werden (BMF Schreiben vom 07.07.2020, Tz 52 BStBlI 2020 Seite 623). Hierdurch erhöhen sich die abschreibungsfähigen Flächen sehr stark. Die Vorgaben und die Kostengrenzen sind eingehalten Beispiel Wohnung Kaufpreis mit TG-Stellplatz 237.400 EUR - Abschreibungen Jahr 1 - 4 ca. 91.484,80 EUR Fragen Sie Ihren Steuerberater. Dieser berät Sie ausführlich.Der Baubeginn ist für Frühjahr 2026 vorgesehen. Die Fertigstellung ist für Ende 2027 geplant. Die Betreuung des Objektes erfolgt zusätzlich durch einen öffentlich bestellten Bausachverständigen. Dies ist ein zusätzlicher Qualitätsbeweis.
So funktioniert es
- Alle neuen Anzeigen matchen wir kostenlos mit Deinen Suchparametern.
- Passende Angebote senden wir Dir in einer E-Mail pro Tag.
- Du kannst auch verschiedene Suchen anlegen und Dich jederzeit abmelden. Mehr dazu
Wir haben soeben eine E-Mail mit Deinem Suchauftrag an Dich geschickt. – Klicke in dieser Mail auf den Bestätigungslink und schon geht's los. Prüfe ggf. auch Deinen Spamordner.
Es gab ein Problem beim Absenden Deiner E-Mail-Adresse. Bitte versuche es erneut.
WARNUNG: Bitte bestätige Deine E-Mail-Adresse, um regelmäßige Updates zu erhalten.