Kaufpreis 382.000 €
Zimmer 5
Größe 133 m²
66809 Nalbach
Objektdaten
Veröffentlicht am: 18. März 2026
Energieausweis: Liegt bei der Besichtigung vor
Danke! Bitte bestätige Deine E-Mail-Adresse – wir haben Dir soeben eine Mail geschickt.
Es gab ein Problem beim Absenden. Bitte versuche es erneut.
Bitte bestätige Deine E-Mail-Adresse, um Updates zu erhalten.
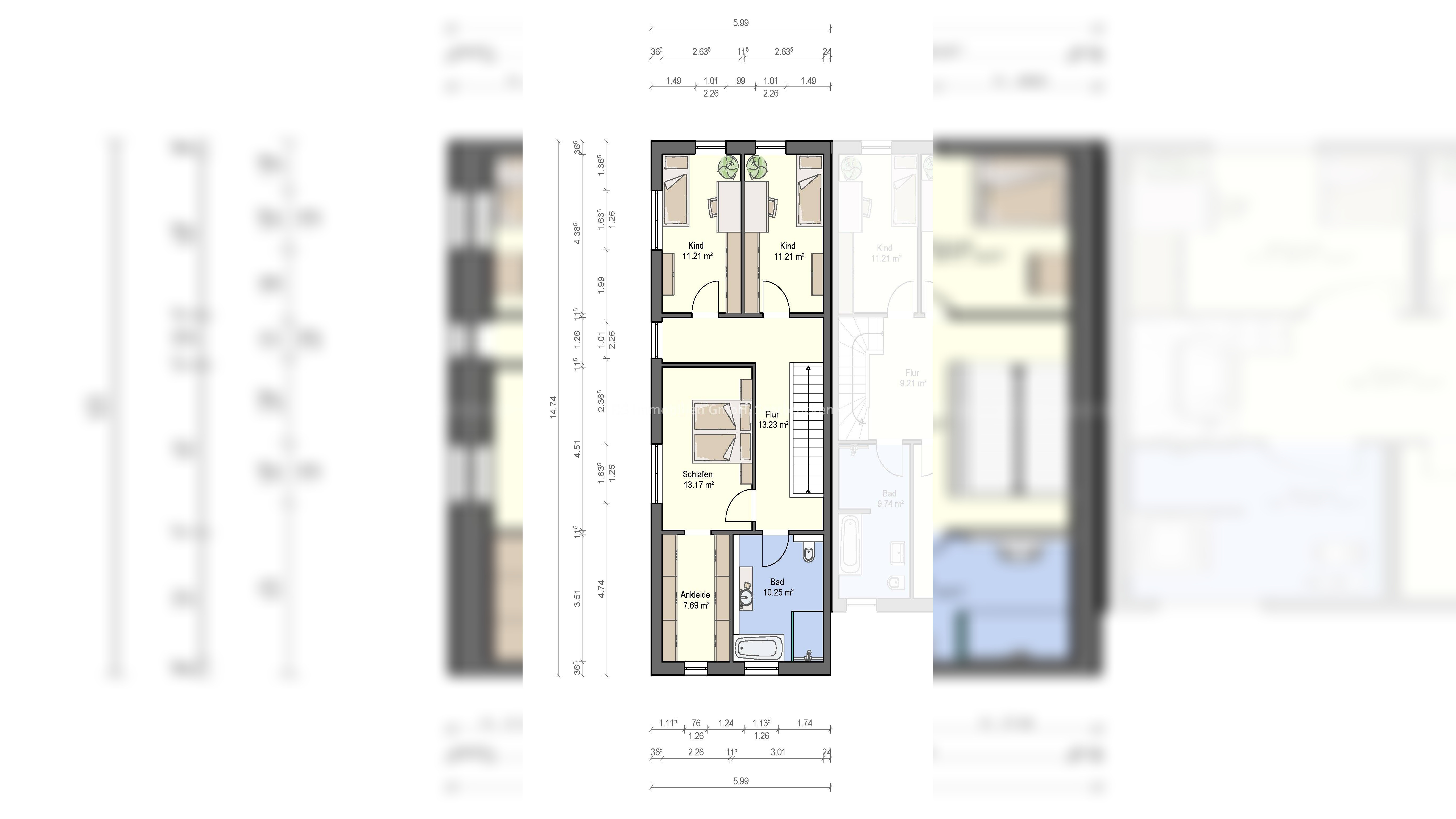
Objektbeschreibung
Im beliebten Wohnort Nalbach, Ortsteil Piesbach, entstehen 3 Reihenhäuser in hochwertiger Massivbauweise und KFW 55 Energiestandard. Das hier angebotene, zweigeschossige Wohnhaus bieten auf ca. 133m² Wohnfläche den idealen Raum für Ihr Familienglück. Im Erdgeschoss befindet sich neben dem Hauswirtschaftsraum ein zusätzlicher Abstellraum, der Ihnen ein Extra an Lagerfläche bietet. Der großzügige Wohnbereich mit offener Küche bietet auf rund 50 m² viel Platz zum Wohlfühlen. Von hier erreichen Sie auch den großzügigen Garten mit Blick ins Grüne. Das Gäste-WC rundet das Raumangebot im Erdgeschoss ab.Über die geflieste Betontreppe gelangen Sie in das Obergeschoss. Hier befinden sich zwei geräumige Kinderzimmer, das Elternschlafzimmer mit separater Ankleide und das Tageslichtbad mit Wanne und Dusche. Die vielen Fensterflächen im Wohnhaus sorgen für freundliche, lichtdurchflutete Räume und ein Ambiente zum Wohlfühlen. Beim derzeitigen Projektstand können wir noch Ihre individuellen Wünsche bezüglich der Grundrissgestaltung berücksichtigen. Einige unserer hochwertigen Ausführungsstandards:. Hochwertige KFW-55 Massivbauweise. Fußbodenheizung in allen Wohnräumen . Dezentrales Be- und Entlüftungssytem. 3-Scheiben-Wärmeschutzverglasung. Fenster mit erhöhtem Einbruchschutz in Markenqualität. Elektrische Alu-Rollläden mit extra leisem Motor. Badausstattung in Markenqualität. Hochwertige Innentüren und Fliesen in Markenqualität... und vieles mehr!
So funktioniert es
- Alle neuen Anzeigen matchen wir kostenlos mit Deinen Suchparametern.
- Passende Angebote senden wir Dir in einer E-Mail pro Tag.
- Du kannst auch verschiedene Suchen anlegen und Dich jederzeit abmelden. Mehr dazu
Wir haben soeben eine E-Mail mit Deinem Suchauftrag an Dich geschickt. – Klicke in dieser Mail auf den Bestätigungslink und schon geht's los. Prüfe ggf. auch Deinen Spamordner.
Es gab ein Problem beim Absenden Deiner E-Mail-Adresse. Bitte versuche es erneut.
WARNUNG: Bitte bestätige Deine E-Mail-Adresse, um regelmäßige Updates zu erhalten.