Objektdaten
Objektbeschreibung
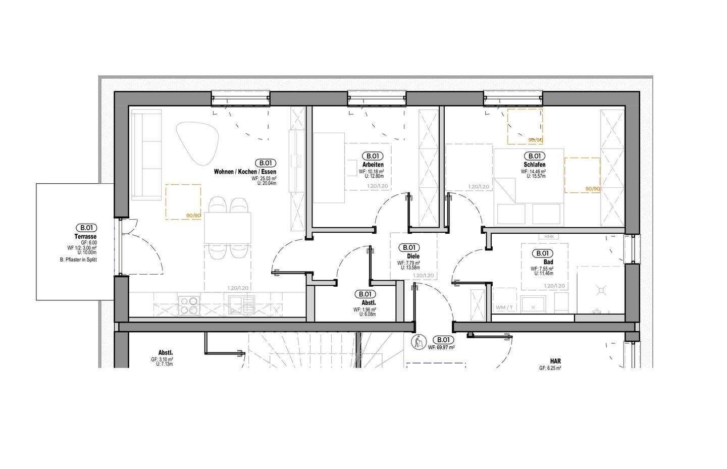
In den Kreuther Höfen entstehen insgesamt 18 hochwertige Eigentumswohnungen in 3 Wohngebäuden mit modernen Grundrissen und lichtdurchfluteten Räumen. Das energieeffiziente Wohngebäude (Effizienzhaus 55 Standard) überzeugt durch klare Architektur, nachhaltige Bauweise und eine harmonische Einbindung in die Umgebung.Nutzen Sie auch den Vorteil einen Kredit über die KfW-Bank in Höhe von 100.00,- Euro mit einem Zinssatz von aktuell 0,01 % in Anspruch zu nehmen (Kredit 296)!Die Wohnung B 1 liegt im Erdgeschoss und bietet ca. 70 m² Wohnfläche mit großzügigem Wohn-/Essbereich, zwei Schlafzimmern, Badezimmer, Abstellraum und Terrasse mit Garten.Jede Einheit verfügt über mindestens einen Stellplatz (Carport) sowie separate Fahrradstellplätze. Die Planung wurde mit Fokus auf Wohnkomfort, Funktionalität und Langlebigkeit entwickeltSo funktioniert es
- Alle neuen Anzeigen matchen wir kostenlos mit Deinen Suchparametern.
- Passende Angebote senden wir Dir in einer E-Mail pro Tag.
- Du kannst auch verschiedene Suchen anlegen und Dich jederzeit abmelden. Mehr dazu




