Kaufpreis 1.400.884 €
Zimmer 5
Größe 161 m²
80992 München
Objektdaten
Veröffentlicht am: 26. März 2026
Energieausweis: Liegt bei der Besichtigung vor
Danke! Bitte bestätige Deine E-Mail-Adresse – wir haben Dir soeben eine Mail geschickt.
Es gab ein Problem beim Absenden. Bitte versuche es erneut.
Bitte bestätige Deine E-Mail-Adresse, um Updates zu erhalten.
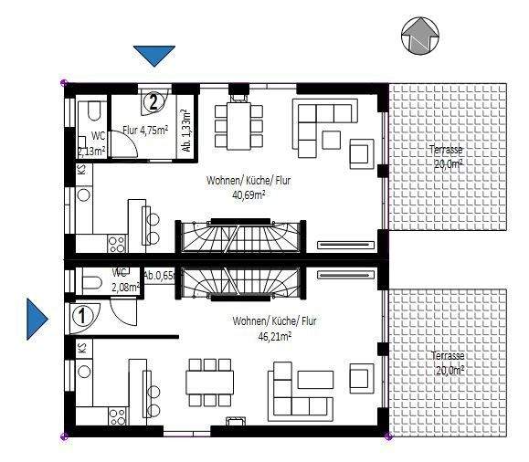
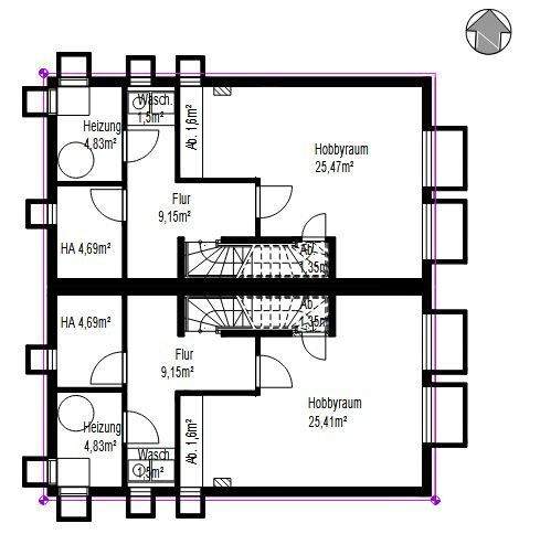
Objektbeschreibung
Willkommen in Ihrem neuen Zuhause - ein Ort, an dem stilvolle Architektur auf durchdachten Wohnkomfort trifft.In einem harmonischen Ensemble entsteht Ihre hochwertige Doppelhaushälfte, die speziell für Familien konzipiert wurden aber ebenso attraktiv für die, die viel Platz und anspruchsvolle Architektur schätzen. Mit klarer Formensprache, großzügigen Grundrissen und hochwertigen Ausstattungsdetails bietet dieses Haus alles, was das Herz begehrt.Das Erdgeschoss begeistert mit einem weitläufigen Wohn- und Essbereich, der fließend in die offene Küche übergeht - der ideale Ort für das tägliche Miteinander. Bodentiefe Fenster durchfluten den Raum mit Licht und führen auf die sonnige Terrasse und in den privaten Garten, der zum Spielen, Entspannen und Genießen einlädt.Im Obergeschoss befinden sich zwei helle, gut geschnittene Schlafzimmer sowie ein modernes Familienbad - perfekt für Kinder, Gäste oder ein Homeoffice. Das Dachgeschoss bietet zwei weitere Zimmer und ein Badezimmer an. Das Souterrain hält ein weiteres Highlight bereit: ein vielseitig nutzbarer Raum mit Tageslicht dank der charmanten Lichthöfe - ideal als ruhiger Arbeitsplatz, Hobbyraum oder komfortables Gästequartier.Alle Einheiten überzeugen durch energieeffiziente Bauweise und modernen Sonnenschutz - für ein angenehmes Raumklima auch an heißen Tagen. Die ruhige Lage mit Nähe zur S-Bahn, zu Einkaufsmöglichkeiten, Schulen und Freizeitangeboten macht das Zuhause zusätzlich attraktiv.Hier erwartet Sie ein durchdachtes Wohnkonzept in ästhetischem Design - perfekt für Familien, die stilvoll und komfortabel leben möchten. Entdecken Sie ein Zuhause, das all Ihre Wohnträume vereint und keine Wünsche offen lässt.
So funktioniert es
- Alle neuen Anzeigen matchen wir kostenlos mit Deinen Suchparametern.
- Passende Angebote senden wir Dir in einer E-Mail pro Tag.
- Du kannst auch verschiedene Suchen anlegen und Dich jederzeit abmelden. Mehr dazu
Wir haben soeben eine E-Mail mit Deinem Suchauftrag an Dich geschickt. – Klicke in dieser Mail auf den Bestätigungslink und schon geht's los. Prüfe ggf. auch Deinen Spamordner.
Es gab ein Problem beim Absenden Deiner E-Mail-Adresse. Bitte versuche es erneut.
WARNUNG: Bitte bestätige Deine E-Mail-Adresse, um regelmäßige Updates zu erhalten.