Objektdaten
Objektbeschreibung
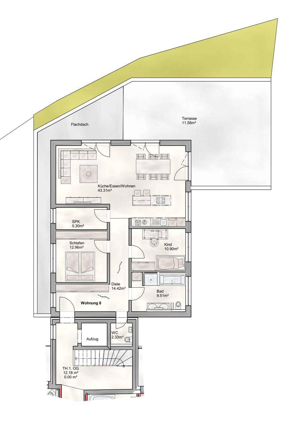
Allgemeines: Die Wohnung wird ausschließlich an solvente Mieter (Singel oder Päarchen) vermietet mit entsprechendem Einkommensnachweis!!! Energiekosten: Der aktuelle Mieter hat einen Verbrauch für Strom und Gas von 150,- Euro. Die Immobilie ist entsprechend gedämmt und bietet zudem einen Schwedenofen (8 KW). Sonstiges: Haustiere (Hunde, Katzen) werden nicht geduldet (hierzu muss eine gesonderte Vereinbarung unterschrieben werden). Ausstattung: Die Wohnung verfügt über kein Kinderzimmer. Die Ausstattung ist durchgängig als sehr hochwertig zu bewerten. Die komplette Wohnung verfügt über einen Vollholzparkett, das Badezimmer ist mit Granit (Galaxy) und hochwertigen Armaturen ausgestattet, die Küche ist 3 Jahre alt und ebenso hochwertig mit Granitarbeitsplatte.So funktioniert es
- Alle neuen Anzeigen matchen wir kostenlos mit Deinen Suchparametern.
- Passende Angebote senden wir Dir in einer E-Mail pro Tag.
- Du kannst auch verschiedene Suchen anlegen und Dich jederzeit abmelden. Mehr dazu





