Warmmiete 1.830 €
Zimmer 4
Größe 95 m²
63456 Hanau
Objektdaten
Veröffentlicht am: 17. April 2026
Kaltmiete 1.500 €
Baujahr: 1980
Energieausweis: Liegt bei der Besichtigung vor
Danke! Bitte bestätige Deine E-Mail-Adresse – wir haben Dir soeben eine Mail geschickt.
Es gab ein Problem beim Absenden. Bitte versuche es erneut.
Bitte bestätige Deine E-Mail-Adresse, um Updates zu erhalten.
Objektbeschreibung
Wohnqualität mit Substanz
Zur Vermietung steht eine umfassend sanierte und renovierte Dachgeschosswohnung in Hanau-Klein-
Auheim. Schon der erste Eindruck macht klar, dass es sich nicht um ein Standardangebot handelt, sondern um ein Wohnungsangebot im gehobenen Mietsegment mit sichtbar hohem Modernisierungsgrad.
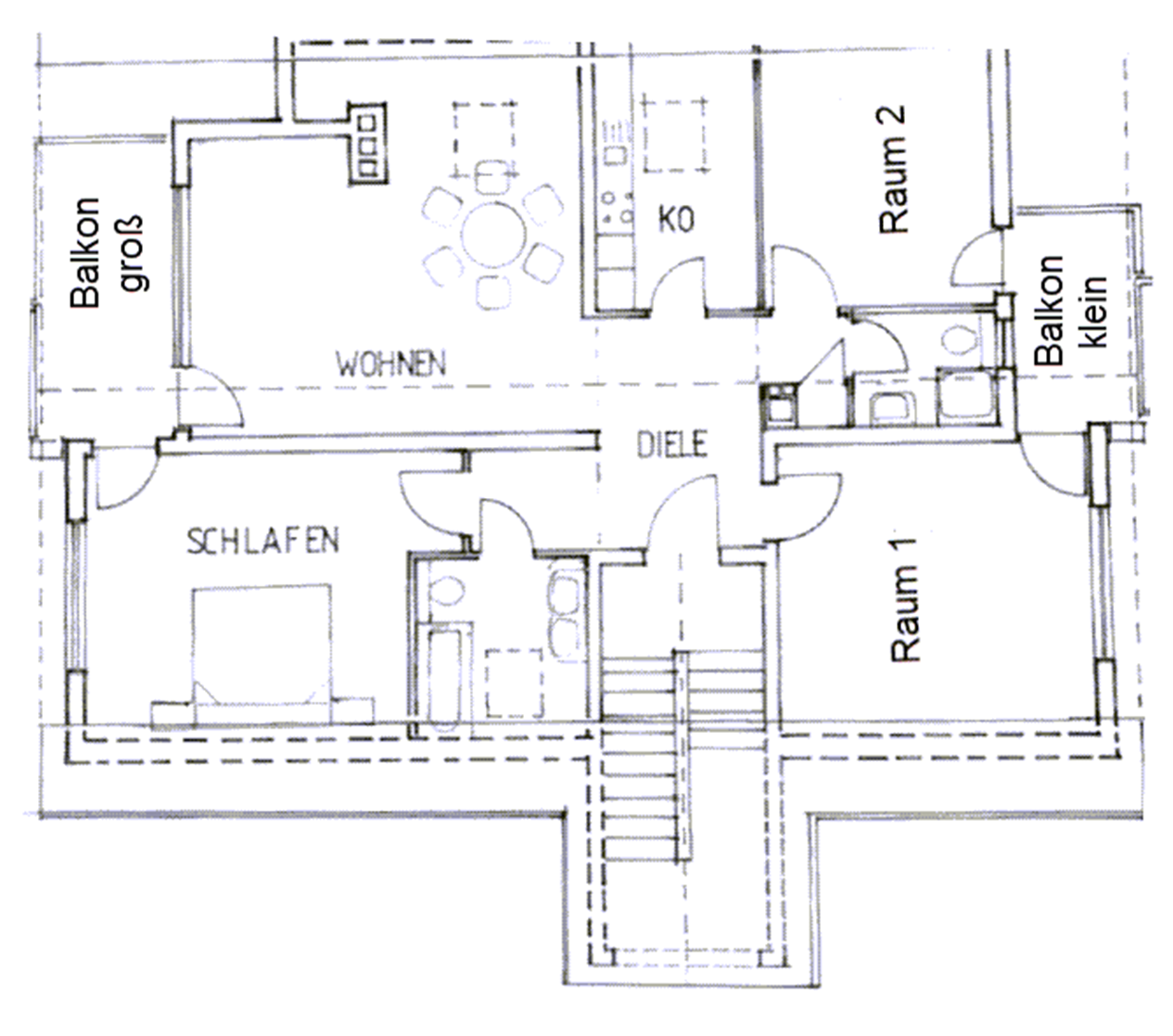
Das Dachgeschoss wurde vollständig überarbeitet. Die Dachdämmung wurde komplett erneuert. Das
durchgängige Echtholz-Eichenparkett wurde ausgebessert, abgeschliffen und präsentiert sich heute nahezu neuwertig. Die Elektroverteilung wurde erneuert und auf einen zeitgemäßen Stand gebracht. Alle Wände wurden verspachtelt und frisch gestrichen.Besonders stark ist die Ausstattung im Sanitärbereich: Das Bad mit Fenster wurde vollständig neu hergestellt und mit moderner Fliesengestaltung, neuer Badewanne und neuen Sanitärobjekten ausgestattet. Auch der zweite Sanitärraum mit Fenster wurde grundlegend erneuert und verfügt über Dusche, WC und moderne Sanitärobjekte. Diese Kombination bietet im Alltag einen Komfort, den vergleichbare Mietwohnungen häufig nicht erreichen.
Außenwirkung und Lage
Zwei überdachte Balkone erweitern die Wohnqualität zusätzlich. Ein Balkon orientiert sich mit freiem Blick in Richtung Naturschutzgebiet/Fasanerie und vermittelt ein angenehm offenes, grünes Wohngefühl. Der zweite Balkon liegt zur Straßenseite. Da die Wohnung in eine Sackgasse liegt, profitiert die Wohnung auch dort von einer verkehrsärmeren und eher ruhigen Situation weil es keinen Durchgangsverkehr gibt.
Die Wohnlage verbindet Ruhe mit Alltagstauglichkeit. Das Umfeld kann als gutes Wohngebiet in einer
mittelgroßen Stadt beschrieben werden. Die Anschlussstelle Hanau-Steinheim liegt in kurzer Distanz, der Bahnhof Hanau Klein-Auheim ist rund
1 km entfernt und eine Bushaltestelle befindet sich in etwa 0,4 km Entfernung. Supermärkte, Bäcker und Metzger, Apotheken und Ärzte sind fußläufig erreichbar.
Ein Angebot für Menschen mit Anspruch
Die Wohnung eignet sich besonders für ein bis zwei Personen, die großzügig wohnen möchten und ein
ruhiges, gepflegtes Haus schätzen. Sehr gut vorstellbar ist sie für Berufstätige, Paare oder Personen mit Homeoffice-Bedarf, die zusätzliche Räume flexibel nutzen möchten. Gesucht wird eine Mietpartei, die den hochwertigen Zustand der Wohnung wertschätzt und zu einem ruhigen Hausumfeld passt. Ein gepflegtes, rücksichtsvolles Miteinander wird vorausgesetzt. Nichtrauchen ist erwünscht. Haustierhaltung, bis auf das gesetzlich Zulässige, ist nur nach individueller Vereinbarung vorgesehen.
Die Kaltmiete von 1.500,00 € pro Monat spiegelt den Gesamtcharakter dieses Angebots wieder: hochwertige Sanierung, zwei erneuerte Bäder, zwei Balkone, Echtholzparkett, ruhige Lage und ein Wohnumfeld, das sich deutlich vom Durchschnitt abhebt.
So funktioniert es
- Alle neuen Anzeigen matchen wir kostenlos mit Deinen Suchparametern.
- Passende Angebote senden wir Dir in einer E-Mail pro Tag.
- Du kannst auch verschiedene Suchen anlegen und Dich jederzeit abmelden. Mehr dazu
Wir haben soeben eine E-Mail mit Deinem Suchauftrag an Dich geschickt. – Klicke in dieser Mail auf den Bestätigungslink und schon geht's los. Prüfe ggf. auch Deinen Spamordner.
Es gab ein Problem beim Absenden Deiner E-Mail-Adresse. Bitte versuche es erneut.
WARNUNG: Bitte bestätige Deine E-Mail-Adresse, um regelmäßige Updates zu erhalten.