Objektdaten
Objektbeschreibung
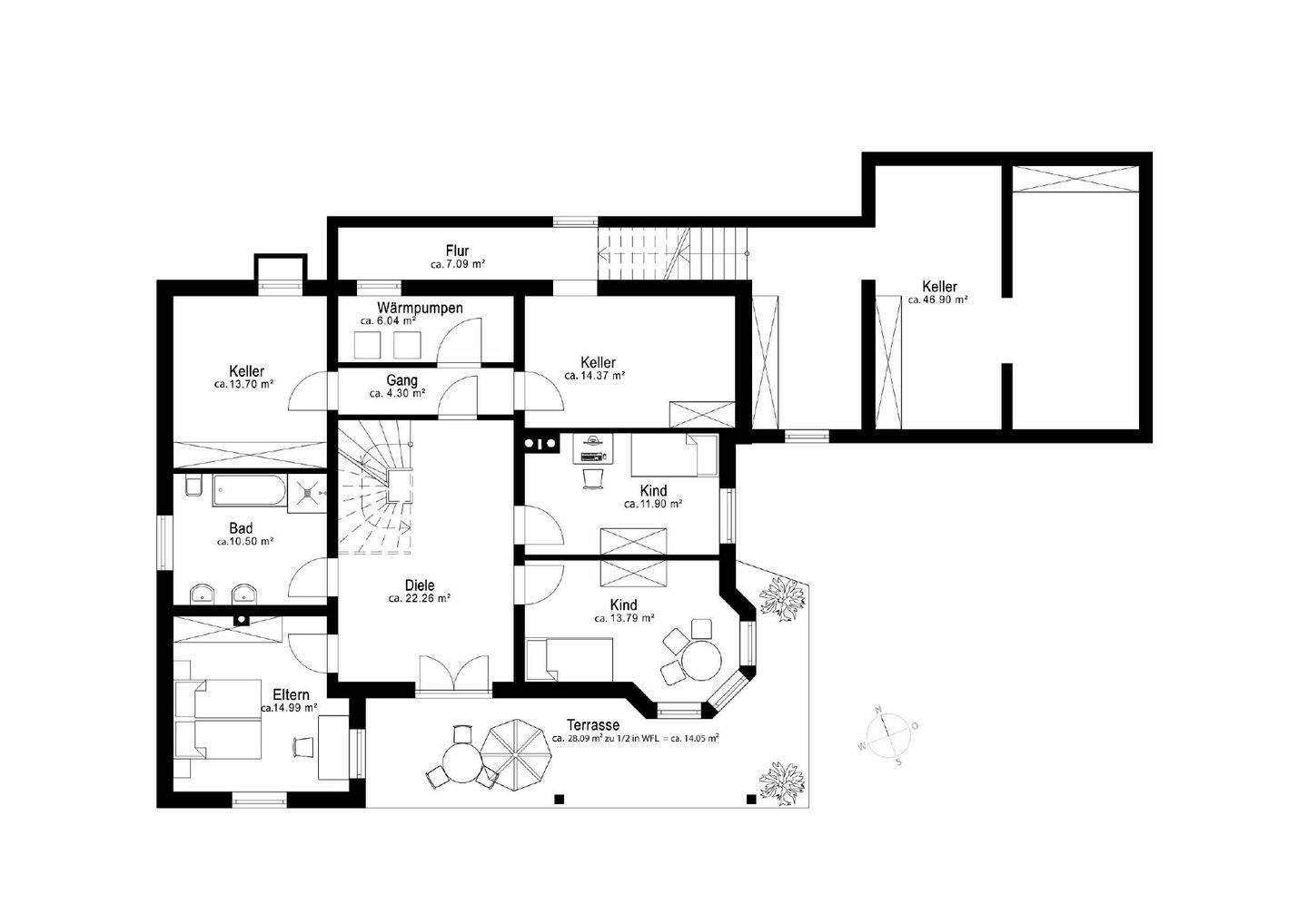
Suchen Sie ein stilvolles und großzügiges Zuhause in einer erstklassigen Wohngegend von Pfaffenhofen? Dann sollten Sie sich dieses weitläufige Anwesen in einer ruhigen und familienfreundlichen Umgebung nicht entgehen lassen!Das 1982 in solider Massivbauweise errichtete Wohnhaus bietet eine großzügige Wohnfläche von ca. 288 m², die sich auf drei Etagen erstreckt. Das Untergeschoss wird derzeit als Arbeits- und Gästezimmer genutzt, lässt sich jedoch dank des durchdachten Grundrisses und eines eigenen Badezimmers flexibel für verschiedene Zwecke umgestalten.Im Ergeschoss bildet eine großzügige Diele den Mittelpunkt des Hauses. Von hier aus gelangen Sie in den gemütlichen Koch- und Essbereich mit integrierter Speißekammer sowie in den großen Wohnbereich mit direktem Zugang zum Sonnenbalkon und dem Wintergarten. Ein Hauswirtschaftsraum sowie ein Gäste WC befinden sich ebenfalls auf dieser Etage. Im Dachgeschoss des Hauses befindet sich ein großes Schlafzimmer mit separater Ankleide oder Abstellraum, sowie das Kinderzimmer. Highlight des Hauses ist das große uneinsehbare Grundstück mit eigener Auffahrt direkt zum Haus. Eine große Doppelgarage mit kleinem Nebengebäude sowie ein Außenstellplatz sind in Kaufpreis für Sie schon enthalten.Die ruhige und familienfreundliche Lage der Immobilie, eine gute Verkehrsanbindung sowie das gepflegte und ebene Grundstück bietenIhnen höchst möglichen Wohnkomfort. Um die Privatsphäre der Mieter zu schützen, enthält dieses Expose keine Innenfotos.So funktioniert es
- Alle neuen Anzeigen matchen wir kostenlos mit Deinen Suchparametern.
- Passende Angebote senden wir Dir in einer E-Mail pro Tag.
- Du kannst auch verschiedene Suchen anlegen und Dich jederzeit abmelden. Mehr dazu



